| CADRES DE FIXATION | BLANC RAL 9003 | |||||
| CODE | W LED | K | LED IRC | Lumen output | couleur | PRIX HT CHF |
| SY47416 | PLASTERBOARD CEILING FRAME 600X600* | 70 | ||||
| SY47418 | PLASTERBOARD CEILING FRAME 1200X300* | 88 | ||||
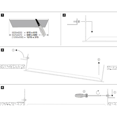
| comprend supports, vis et rondelles enthält seitliche Halterungen, Schrauben und Unterlegscheiben | ||||||
| *cadre de fixation pour faux-plafond plâtre / Befestigungsrahmen für Zwischendeckenputz |